返回首页
无障碍浏览
长者版
宁东能源化工基地管理委员会
政府信息
公开指南
政府信息
公开制度
法定主动
公开内容
·
领导信息
·
组织机构
·
机构职能
·
政策法规
·
政策解读
·
预算/决算
·
人事信息
·
重大项目
·
行政许可和其他管理服务信息
·
行政事业性收费
·
政府采购
·
重点领域公开
·
政府网站工作年度报表
政府信息
公开年报
依申请公开
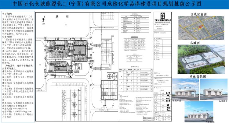
中国石化长城能源化工(宁夏) 有限公司危险化学品库建设项目规划批前公示图
发布机构:宁东能源化工基地管委会
发布日期:2025-09-16